УБЕЖИЩА В ПОДВАЛЕ ОБЩЕСТВЕННЫХ ЗДАНИЙ
Типовой проект П-3-330(252-1-119с.83) Хозяйственно-бытовые помещения , размещаемые в подвале главного корпуса детской...
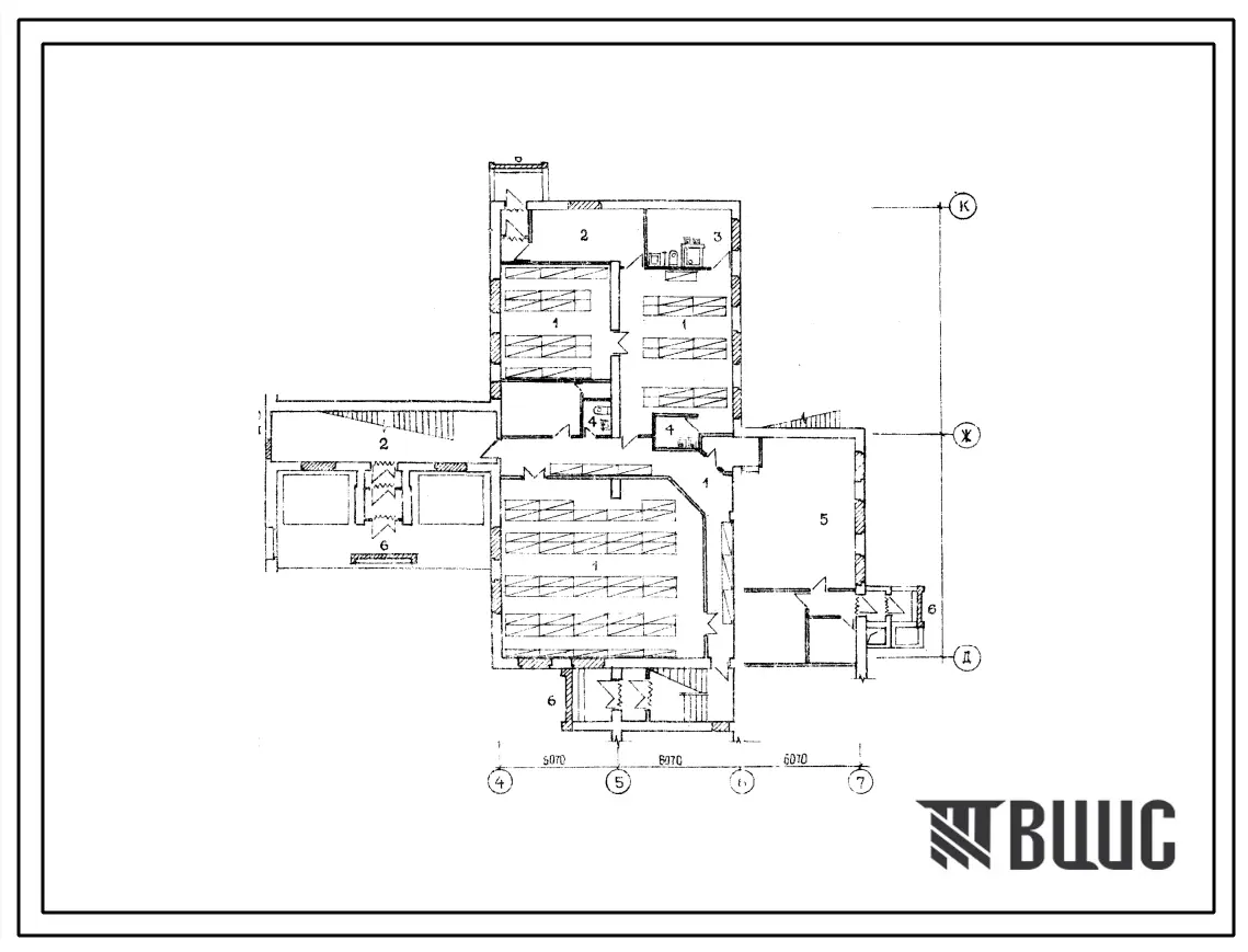
Типовой проект П-1-728(252-1-125с.84) Помещения в подвале главного корпуса центральной районной больницы на 250 коек ...
Типовой проект Б-3-600(232-1-108) Помещения первого этажа общественного-бытового корпуса профтехучилища на 960 уч...
Типовой проект Б-3-600(222-1-370с) Двойное помещения первого этажа общеобразовательных школы на 8 классов(192 учащ...
Типовой проект Б-3-535(264-12-162) Помещения двойного назначения первого этажа городского дома культуры с залом на...
Типовой проект Б-3-530(264-13-83с) Помещения 1-го этажа кинотеатра на 500 мест со стенами из кирпича, (убежище на ...
Типовой проект Б-3-528(222-4-6) Двойное использование помещений 1 этажа дома-интерната для обучаемых умственно-...
Типовой проект Б-3-524(264-13-107) Помещения 1го этажа детского двухзального кинотеатра с залами на 400 и 200 мест...
Типовой проект Б-3-522(232-2-39с) Двойное использование помещений 1 этажа универсального общественно-бытового кор...
Типовой проект Б-3-504(232-1-49 СП.76) Двойное использование помещений 1 этажа общественно-бытового корпуса уни...
Типовой проект Б-3-500(264-20-79) Двойное использование помещений 1го этажа здания городского района кпсс/стены к...
Типовой проект Б-3-500(222-1-364с) Двойное использование помещений 1 этажа средней школы на 12 классов(464 учащихс...
Типовой проект Б-3-500(221-1-135-368) Двойное использование помещений 1 этажа средней школы на 12 классов(464 учащихс...
Типовой проект Б-3-500(221-1-25-372) Помещения 1 этажа средней школы на 12 классов (464 учащихся), (убежище на 500 ч...
Типовой проект Б-3-490(261-12-213см) Бытовое помещение 1 этажа сельского дома культуры (в конструкциях ии-04) с зало...
Типовой проект Б-3-444(221-1-125.75-369) Помещения первого этажа средней школы на 10 классов/392 учащихся/, приспосаблив...
Типовой проект Б-3-443(222-1-361с) Двойное использование помещений первого этажа средней школы на 10 классов(392 у...
Типовой проект Б-3-425(214-1-178) Двойное использование помещений 1 этажа детских яслей-сада на 320 мест, (убежищ...
Типовой проект Б-3-420(264-12-205) Помещения 1го этажа сельского дома культуры культуры с залом на 300 мест с адми...
Типовой проект Б-3-417(232-1-101с) Помещения 1 этажа учебного корпуса профтехучилища на 540 учащихся, (убежище на ...
Типовой проект Б-3-400(224-1-362) Помещения 1 этажа средней школы на 10 классов (392 учащихся), (убежище на 400 ч...
Типовой проект Б-3-400(211-2-155) Двойное использования помещений первого этажа универсальных детских яслей-садов...
Типовой проект Б-3-390(264-13-104) двойное использование помещений 1го этажа детского кинотеатра на 300 мест со ст...
Типовой проект Б-3-384(284-3-35) Помещения 1 этажа зданий предприятий хозяйственно-технического обслуживания, (у...
Типовой проект Б-3-384(282-3-36) Помещения первого этажа зданий предприятий хозяйственно-технического обслуживан...
Типовой проект Б-3-375(272-30-94с) Двойное использование помещений первого этажа торгового центра, (убежище на 375...
Типовой проект Б-3-375(272-15-8с) Двойное использование помещений 1 этажа унифицированного здания магазина,в конс...
Типовой проект Б-3-370(264-24-7) Двойное использование помещений 1 этажа государственного архива из 1,0 млн. еди...
Типовой проект Б-3-365(212-1-179с) Двойное использование помещений 1 этажа детских яслей-сада на 320 мест, (убежищ...
Типовой проект Б-3-340(222-1-347) Двойное использование помещений 1 этажа школы-интерната на 10 классов, (убежище...
НАШ СПЕЦИАЛИСТ ПОМОЖЕТ ВАМ




























