Проектный институт ЦНИИЭПграждансельстрой
Тематики проектов
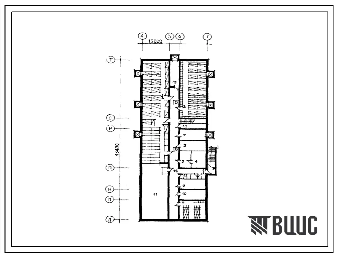
Типовые проекты разработанные ЦНИИЭПграждансельстрой
Типовой проект 146-214-10.87 Одноквартирный мансардный 3-комнатный дом брусчатой конструкции
Типовой проект 146-214-11.87 Одноквартирный 4-комнатный дом брусчатой конструкции
Типовой проект 146-214-2 Мансардный одноквартирный 5-комнатный дом (с рублеными стенами)
Типовой проект 146-214-4 Мансардный одноквартирный дом с 3-комнатной квартирой брусчатой конструкции для...
Типовой проект 146-214-5 Мансардный одноквартирный дом с 4-комнатной квартирой брусчатой конструкции для...
Типовой проект 146-214-7.87 Мансардный одноквартирный 4-комнатный дом, сблокированный с хозпостройкой
Типовой проект 642-2 Двухэтажный жилой дом для семьи из 5 человек
Типовой проект 642-1 Двухэтажный жилой дом для семьи из 4 человек с сауной и гаражом
Типовой проект 216-049.90 5-комнатная блок-квартира с хозпомещениями в цокольном этаже (для индивидуально...
Типовой проект 216-040.90 Пятикомнатная блок-квартира в разных уровнях с хозяйственными помещениями в цок...
Типовой проект 199-000-218.83 Гараж для индивидуальной автомашины. Общая площадь 15 м2 (СТЕНЫ – ДЕРЕВЯННЫЙ КА...
Типовой проект 199-000-215.83 Хозяйственная постройка для содержания скота и птицы с максимальным набором пом...

































































































































































































































































































































































































































































































































































































































































































































































































































































































































































































