Проектный институт Грузгипросельстрой
Тематики проектов
Типовые проекты разработанные Грузгипросельстрой
Типовой проект 901-4-8с Открытые пожарные резервуары емкостью 50, 100, 150 м3.
Типовой проект П-4-25(408-20-47М) Бытовые помещения 1 этажа районной типографии мощностью 1,5 млн. единиц печати ...
Типовой проект П-2-280(264-21-40с.84) Хозяйственно-бытовые помещения в подвале административного здания на 40 рабочих...
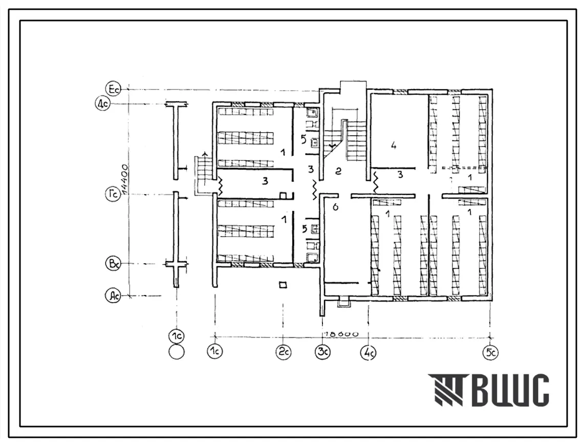
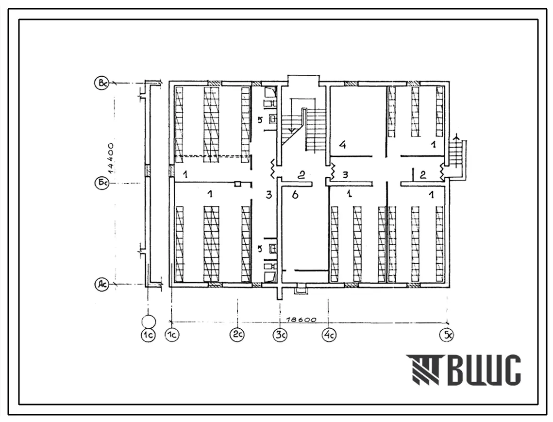
Типовой проект П-5-170(264-21-40с.84) Помещения 1 этажа административного здания на 40 рабочих мест, (убежище на 170 ...
Типовой проект Б-1-158(252-5-29С) Хозяйственно-бытовые помещения в подвале станции скорой медицинской помощи, (уб...
Типовой проект П-5-252(264-12-252с.85) Помещения первого этажа сельского клуба с залом на 200 мест, (убежище на 252 че...
Типовой проект Б-1-155(214-1-213С) Хозяйственно-бытовые помещения в подвале станции скорой медицинской помощи с к...
Типовой проект П-2-147(213-1-373с.13.86) Помещения общественного назначения в подвале детских яслей-сада на 50 мест, (уб...
Типовой проект П-2-147(214-1-374с.13.86) Помещения общественного назначения в подвале детских яслей-сада на 50 мест, (уб...
Типовой проект П-2-222(213-1-371с.13.86) Помещения хозяйственно-бытового назначения в подвале детских яслей-сада на 95 м...
Типовой проект П-2-259(213-1-372с.13.86) Помещения хозяйственно-бытового назначения в подвале детских яслей-сада на 95 м...
Типовой проект П-2-260(214-1-300с.84) Помещения общественного назначения в подвале детских яслей-сада на 90 мест с се...






































































































































































































































































































































































