Проектный институт Гипроторг
Тематики проектов
Типовые проекты разработанные Гипроторг
Типовой проект 0701-1-01.89 Технологические решения помещений для хранения продовольствия убежищ вместимост...
Типовой проект П-4-650(703-3-2.83) Бытовые помещения 1 этажа главного корпуса плодоовощной базы емкостью 20000 тон...
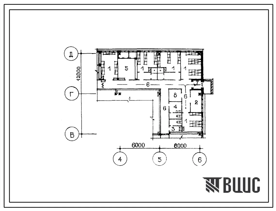
Типовой проект П-4-50(701-2-29.85) Вспомогательные помещения первого этажа главного корпуса для хранения непродово...
Типовой проект П-2-70(701-1-35) Хозяйственно-бытовые помещения 1 этажа общетоварного склада для хранения продов...
Типовой проект Б-1-56(701-2-26) Склад несгораемых материалов в подвале склада для хранения продовольственных то...
Типовой проект Б-1-57(701-3-20) Склад несгораемых материалов в подвале склада для хранения продовольственных то...
Типовой проект Б-1-60(701-1-32) Склад несгораемых материалов в подвале склада для хранения продовольственных то...
Типовой проект А-3-50(701-2-46с.88) Материально-технические кладовые в подвале склада многоэтажного для хранения пр...
Типовой проект А-3-100(701-1-50.87) Материально-технические кладовые на отм -4.500, (убежище на 100 человек, размер...
Типовой проект А-3-100(701-1-51.88) Помещения материально-технической кладовой в подвале пристройки бытовых и вспом...
Типовой проект А-3-100(701-3-23.87) Материально-техническая кладовая в подвале склада многоэтажного для хранения пр...
Типовой проект А-3-100(701-3-27.88) Складские помещения в подвале склада продовольственных и непродовольственных то...







































































































































































































