Проектный институт Гипропромтрансстрой
Тематики проектов
Типовые проекты разработанные Гипропромтрансстрой
Типовой проект 416-5-4 Казарма ВОХР. Тип 4
Типовой проект 416-5-17 Казарма военизированной охраны.
Типовой проект 501-05-122.91 Светофорные мостики и консоли для светофоров линзовых с наборными головками
Типовой проект 501-0-118 Железнодорожные переезды. Путевая часть. Рабочие чертежи.
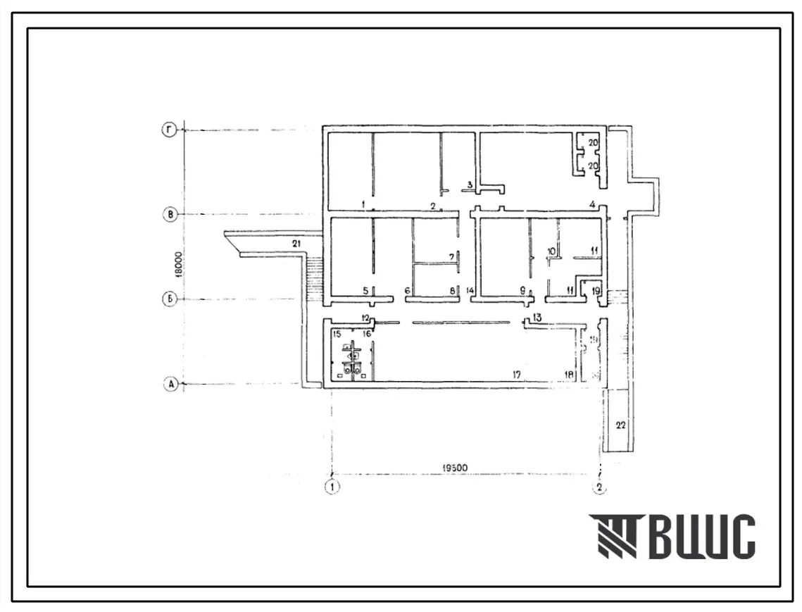
Типовой проект 501-83 Служебно-производственное здание для сетевого района (со штатом 30 человек).
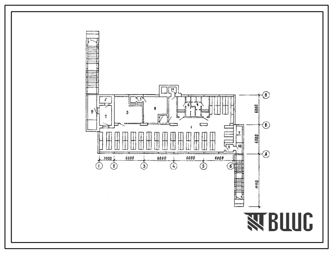
Типовой проект 501-29 Служебно-производственное здание для сетевого района.
Типовой проект 501-6-19.86 Служебно-производственное здание для сетевого района
Типовой проект 501-30 Контрольный пункт автотормозов.
Типовой проект 501-224 Контрольный пункт автотормозов для грузовых вагонов (вариант с бытовыми помещен...
Типовой проект 501-225 Контрольный пункт автотормозов для грузовых вагонов (вариант без бытовых помеще...
Типовой проект 501-7 тип 5 Объединенные механизированные цехи ангарного типа по переработке тарно-уп...
Типовой проект 501-7 Объединенные механизированные цеха ангарного типа по переработке тарно-упаковоч...





























































































































































































































































































































































































































