Проектный институт БелНИИгипросельстрой
Тематики проектов
Типовые проекты разработанные БелНИИгипросельстрой
Типовой проект 294-2-59 Спортивный корпус с залом 30х18 м и плавательным бассейном с ванной 25х11 м. Дл...
Типовой проект 214-1-222 Детские ясли-сад на 90 мест.
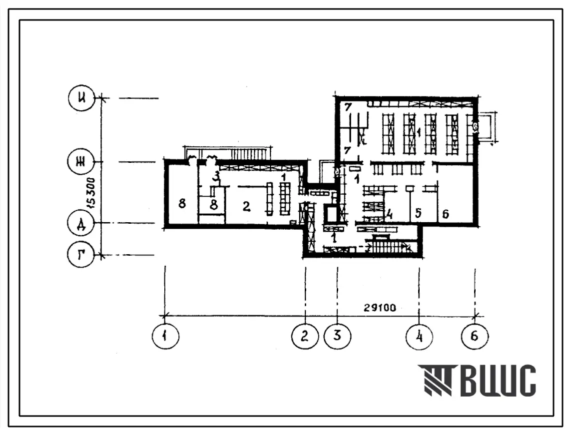
Типовой проект П-2-240(254-4-71.13.89) Служебные помещения в подвале сельской амбулатории на 100 посещений в смену, (у...
Типовой проект 144-89-72/1.2 Жилой дом (БКС-18) 2-этажный с квартирой 4Б в двух уровнях
Типовой проект 144-89-73/1 Двухэтажный жилой дом с четырехкомнатной квартирой 4Б в двух уровнях (шифр БКС...
Типовой проект 144-89-97.86 Мансардный жилой дом с трехкомнатной квартирой типа 3Б
Типовой проект 144-89-98.86 Мансардный жилой дом с четырехкомнатной квартирой типа 4Б
Типовой проект 148-235-20.1.13.90 2-этажный 1-квартирный 5-комнатный жилой дом с квартирой в двух уровнях (для ст...
Типовой проект 148-235-20.2.13.90 2-этажный 1-квартирный 5-комнатный жилой дом с квартирой в двух уровнях. Вариан...
Типовой проект 148-235-4.86 Мансардный жилой дом с трехкомнатной квартирой типа 3Б. Для индивидуальных заст...
Типовой проект 148-235-5.86 Мансардный жилой дом с четырехкомнатной квартирой типа 4Б. Для индивидуальных з...
Типовой проект 210-06.2 Трехэтажная 9-квартирная рядовая блок-секция с квартирами 2Б-2Б-2Б

















































































































































































































































































































































































































